Баня Хилл-хаус «Эксклюзив»

  • проект 2 хилл хаус.29_result2
  • IMG-20221121-WA0048_result2
  • IMG-20221121-WA0047_result
  • IMG_6080
  • IMG-20221121-WA0045_result
  • IMG-20221121-WA0044_result
  • проект 2 хилл хаус.33_result2
  • проект 2 хилл хаус.32_result2
  • проект 2 хилл хаус.30_result2
  • проект 2 хилл хаус.34_result2
  • проект 2 хилл хаус.31_result2

757 990

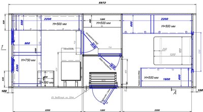
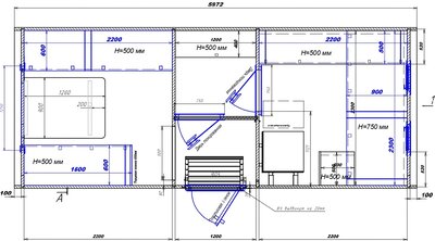
Баня Хилл-хаус имеет три помещения. В данной модели Вы можете организовать полноценное помывочное отделение. За счет формы баня обеспечит быстрый прогрев помещений даже зимой. Баня устанавливается бригадой сборщиков за один день.

  • Вы можете сделать точный расчет стоимости бани и сделать заказ самостоятельно. Нажмите на каждый пункт для выбора опций.

    • Grill'D Bochky Short

      В базовой комплектации. Grill’D Bochky Short с внутренней топкой. Загрузка - 40 кг камней. Сталь повышенной прочности

    • Печь не выбрана

    • Сетка для камней L500 с камнями. В базовой комплектации бани.

    Теплый пол

    Для обогрева используется инфракрасная система с защитой от перегрева, обеспечивающая быстрый и равномерный нагрев. В качестве напольного покрытия применяется кварц-виниловая плитка (SPC) с текстурой натурального дерева, отличающаяся повышенной износостойкостью и эстетичным внешним видом. Для максимальной энергоэффективности монтаж выполняется на специальную теплоизолирующую подложку.

    Спальное место

    Описание: полка под окном (300 мм по всей ширине бани), 2 удобных ящика под полкой с дверцами на защелках, 2 просторных рундука по бокам бани с откидными крышками, раскладное спальное место 2200×1750 мм (убирается под полку).
    • +
    • +
    • +
  • *Выберите комплектацию

    Reset options
  • Количество слоев внешней обработки

    Цвет внешней обработки

    Цвет торцов и наличников

Описание

Каркас
  • Еловый или кедровый профиль толщиной 42х92 мм, влажностью 10%
  • Основание под баню
  • Внешняя обработка антисептиком в один слой (при поставке изделия в готовом виде или со сборкой на участке)
Кровля
  • Крыша из гибкой черепицы Döcke PIE или Технониколь. Цвет коричневый
Печной узел
  • Дровяная печь Grill’D Bochky Short
  • Пожаробезопасное многослойное основание-сэндвич под печь из нержавеющей стали, минерита и базальтового картона
  • Защита от нагрева из минерита
  • Камни для печи (в подарок)
Дымоход
  • Дымоход в сборе
  • Проходной узел под дымоход из нержавеющей стали, термоизоляции, резинового уплотнителя с хомутом
Двери
  • Входная дверь ПВХ с панорамным стеклопакетом 1800х700мм
  • Стеклянная тонированная дверь в парилку 1640х605мм
  • Стеклянная тонированная дверь в моечное отделение 1640х605мм
Парное отделение
  • Полки из липы или осины согласно схемы расположения
  • Трапик на пол из ели
  • Светильник банный IP54
  • Два окна 300х400 мм
Комната отдыха
  • Полки из липы или осины согласно схемы расположения
  • Трапик на пол из ели
  • Стол
  • Окно ПВХ 1250х780 мм со стеклопакетом и москитной сеткой
  • Светильник банный IP54
  • Розетка
  • Выключатель
Моечное отделение
  • Полки из липы или осины согласно схемы расположения
  • Трапик на пол из ели
  • Проливной пол с возможностью замены
  • Светильник банный IP54
Каркас
  • Срощенный еловый профиль 40х88 мм, влажностью 10%
  • Основание под баню
  • Внешняя обработка антисептиком в один слой (при поставке изделия в готовом виде или со сборкой на участке)
Кровля
  • Крыша из гибкой черепицы Döcke PIE или Технониколь. Цвет коричневый
Печной узел
  • Дровяная печь Grill’D Aurora Mini short black
  • Пожаробезопасное многослойное основание-сэндвич под печь из нержавеющей стали, минерита и базальтового картона
  • Защита от нагрева из минерита
  • Камни для печи (в подарок)
Дымоход
  • Дымоход в сборе
  • Проходной узел под дымоход из нержавеющей стали, термоизоляции, резинового уплотнителя с хомутом
Двери
  • Входная дверь деревянная без окна
  • Деревянная дверь в парилку
  • Деревянная дверь в моечное отделение
Парное отделение
  • Полки из ели согласно схемы расположения
  • Трапик на пол из ели
  • Светильник банный IP54
  • Два окна 300х400 мм
Комната отдыха
  • Полки из ели согласно схемы расположения
  • Трапик на пол из ели
  • Стол
  • Окно ПВХ 1250х780 мм со стеклопакетом и москитной сеткой
  • Светильник банный IP54
  • Розетка
  • Выключатель
Моечное отделение
  • Полки из ели согласно схемы расположения
  • Трапик на пол из ели
  • Душевой поддон
  • Светильник банный IP54

Детали

Количество помещений

3

Общая длина (наружный размер)

5972 мм

Высота

2800 мм

Ширина

2384 мм

Вес

2671 кг